Structure Maquette
Professor: Kathrine Ambroziak and Tracy Moir McClean Fall 2022
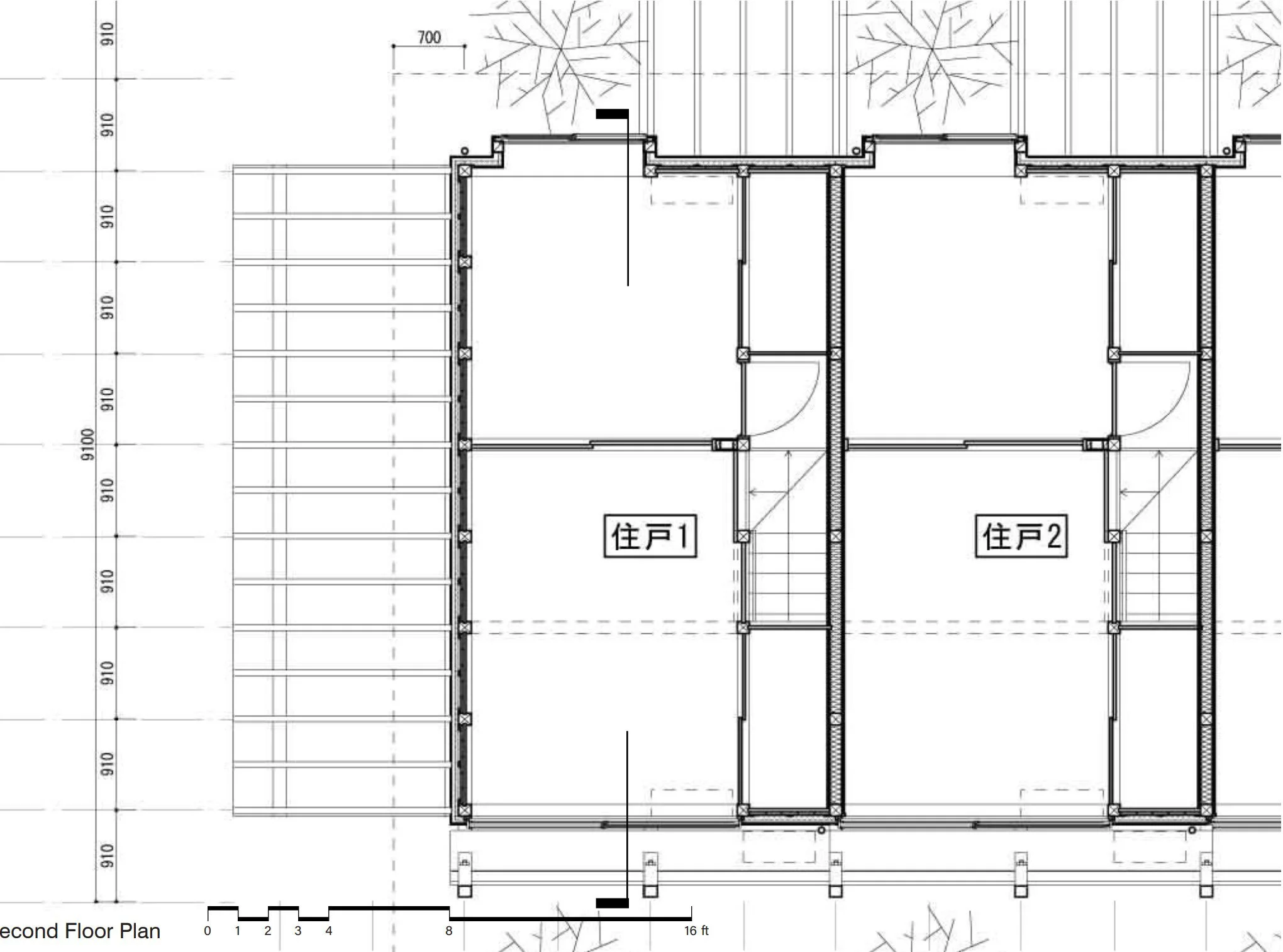
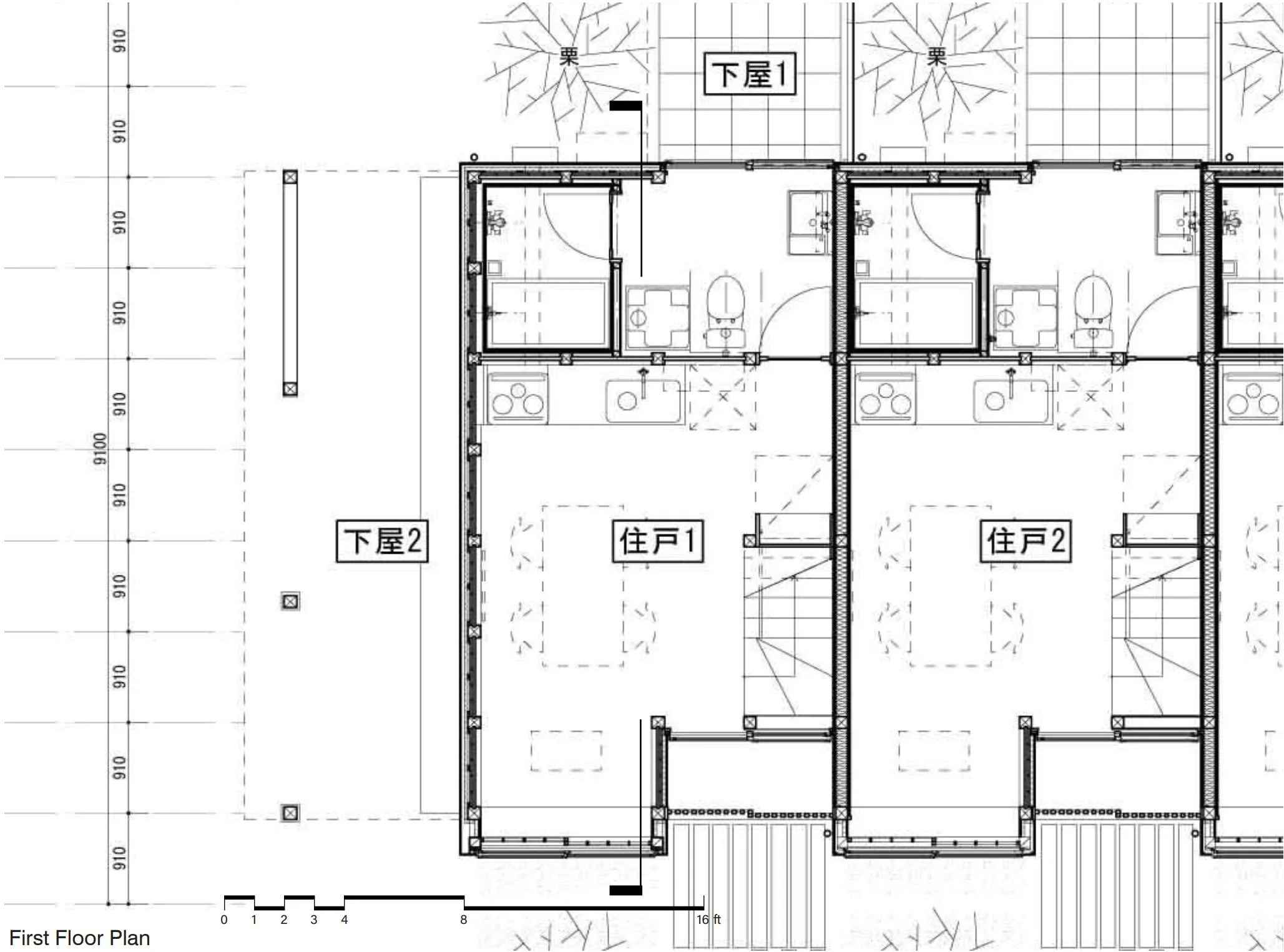
Structural model of Satoyama Nagaya Hoshinogawa by Atelier Bow-Wow.
This is an examination of structures. I used existing plans, sections, and images to understand the structural system of an existing building. I modeled one bay of this structure, and then applied an abstracted materiality.
Structure with Representative Facade
Existing drawings used in modeling the structure